EN DE PL

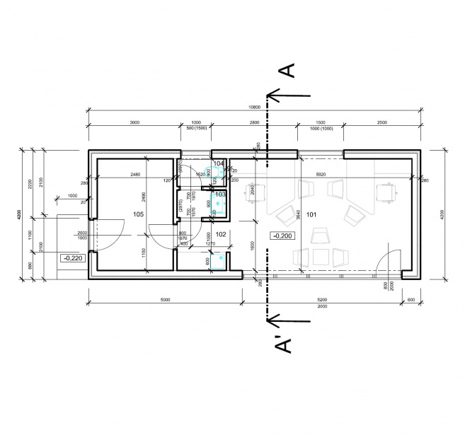
Kancelária pre ŠKODA Plus, Žďár nad Sázavou

Interiér modulovej kancelárie pre ŠKODA Plus. Vnútorné dispozície sú riešené na prianie zákazníka. Videá z pokládok našich domov môžete nájsť na našom Youtube channelu Hutchhouse

Máte záujem o podobný modul?

Poznámka:

 Súhlasím, že prevádzkovateľ webu hutchhouse.cz je oprávnený v súlade s príslušnými všeobecne platnými právnymi predpismi, najmä so Zákonem č. 101/2000 Sb. o ochraně osobních údajů Česé republiky spracovať a uchovať všetky informácie a údaje po dobu najviac jedného roka, ktoré jej na účely spracovania dopytu poskytujem.